Mixed-Use Development on LSIS Site
Barnet, London, UK
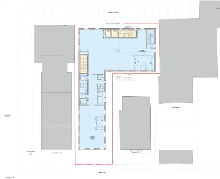
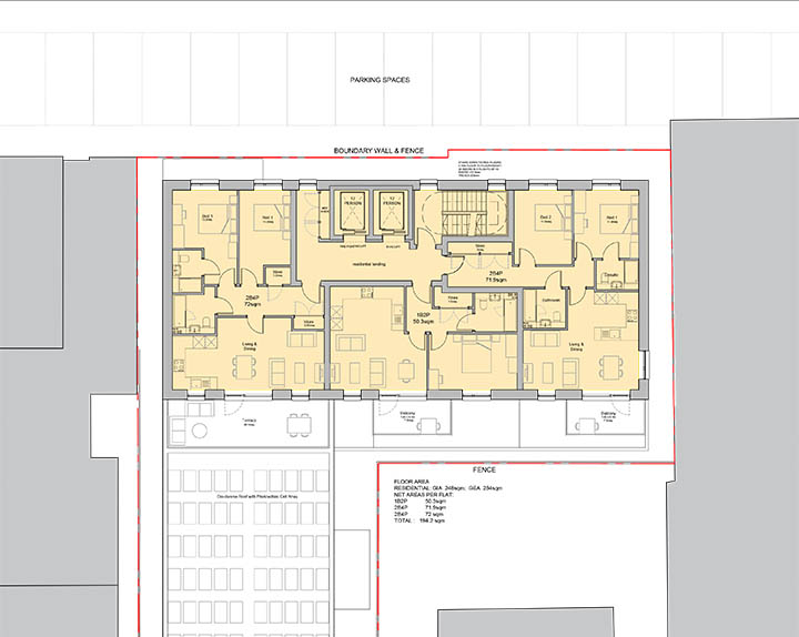
Simon Kaufman Architects have prepared a mixed-use proposal for a Locally Significant Industrial Site (LSIS) in Barnet, combining new employment space with residential apartments above. The scheme makes efficient use of a constrained site, introducing high-quality workspace over two floors with three new homes above—creating long-term value for the landowner.
The project responds to Barnet's Growth Strategy and London Plan objectives for intensifying employment land while contributing to housing targets. Positive early feedback was received through pre-application discussions, reflecting our strategic and collaborative approach to planning.
Apartments are carefully designed to meet space standards, with private amenity space and considered separation from the workspaces below. This ensures comfort and privacy while maintaining flexibility in the commercial units for a range of future tenants.
We are experienced in managing complex urban infill sites such as this, balancing planning policy, site constraints, and financial viability. The project provides a replicable model for intensifying underused LSIS land and demonstrates our ability to unlock hidden value in difficult locations.








Expert guidance for mixed-use developments on Local Strategic Industrial Sites (LSIS).
We help developers and landowners navigate planning, design, and technical requirements to deliver high-quality residential units above commercial or industrial space, maximising site value while meeting policy and operational objectives.
Phone: 07966 468 348
Email:
